Добро пожаловать на http://vipplan.ru

Випплан Пенза - это тысячи проектов домов в нашем каталоге!

Вы всегда сможете найти для себя проект дома вашей мечты! Даже если этого не случилось, мы готовы в любую минуту предложить проект индивидуального дома.

Забыли пароль?
Вы еще не регистрировались?

Перейдите по ссылке ниже на страницу регистрации.

Регистрация...

Внимание!!!

В проектную документацию могут быть внесены изменения любой сложности, в соответствии в Вашими пожеланиями!

Полезные статьи

Плиты перекрытий

Железобетонные плиты очень широко используются в строительстве. При помощи них возводят как промышленные объекты так жилые. Железобетонные плиты перекрытия являются главной частью любого строительного объекта вне зависимости от этажности....

Выбор бригады строителей в Пензе

Перед началом строительства дома перед будущим хозяином загородной недвижимости в Пензенской области обозначится несколько вариантов: обратиться в строительную компанию, специализирующуюся на малоэтажном коттеджном строительстве, воспользоваться услугами частной бригады; строить самому "своими руками"....

Проекты домов и коттеджей > Каталог проектов домов > Готовый проект загородного дома Vg1314

Готовый проект загородного дома Vg1314

Готовый проект загородного дома
Зарегистрируйтесь

Проект № Vg1314


Техническое описание
Общая площадь: 206.79 м2
Жилая площадь: 112.86 м2
Высота здания: 8.56 м
Размеры дома: 16.8м×10.3м
Кол-во комнат: 6
Цокольный этаж: нет
Гараж: нет
Мансарда: есть

Kонструкция
Фундамент: Щелевой, монолитный ж/б
Перекрытия: Сборные ж/б плиты
Материал стен: Газобетон

Архитектурный раздел
Конструктивный раздел
АР+КР - 64 000 (Со скидкой 20%)
Проект индивидуального одноэтажного жилого дома с размерами здания 16,80 x 10,30 м. Стены - сайдинг стеновой. Цоколь - сайдинг цокольный. Отделка вентканалов и дымоходов - кровельный профнастил. Фундамент - "стена в грунте" (щелевой), монолитный ж/б. Наружные стены дома: Газобетонные блоки D500, минвата (в распор между обрешеткой), сайдинг стеновой. Внутренние стены: - газобетонные блоки. - кирпич. Перегородки: - гипсовый блок (пазогребень). Пол первого этажа - пол по грунту. Пол мансардного этажа - сборные ж/б плиты перекрытия. Потолок мансардного этажа - по затяжкам стропильной системы. Крыша многоскатная. Покрытие - металлочерепица. Перемычки - монолитные и сварные из профиля проката. Окна - металлопластиковые, выполненные по индивидуальному заказу. Лестница - ж/б монолитная, выполняется по индивидуальному заказу.
Генплан застройки участка / Паспорт проекта 7000 руб / 10000 руб
Инженерный раздел (полный) 103500 руб
Смета на строительство 51750 руб
Теплотехнический расчет материалов стен Бесплатно
Стоимость проекта со незначительнми изменениями 74800 руб
Стоимость проекта со средними изменениями* 90400 руб
Стоимость проекта со значительными изменениями** 94500 руб

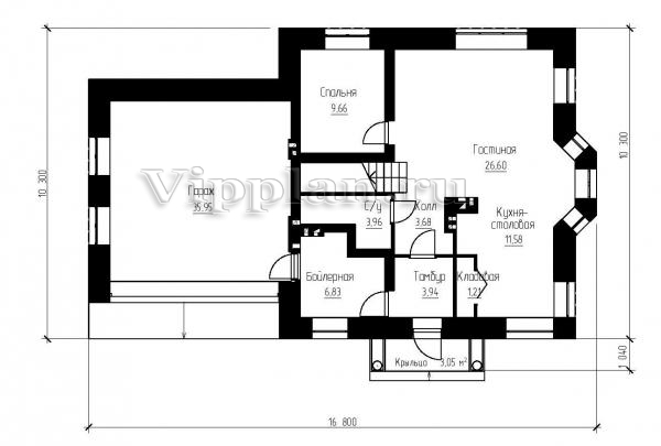
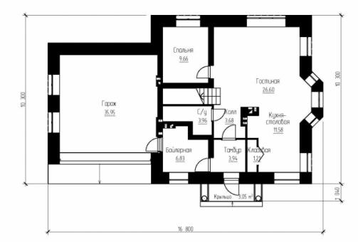
План первого этажа


Гараж — 35,95 кв м
Бойлерная — 6,83 кв м
Спальня — 9,66 кв м
С/у — 3,96 кв м
Холл — 3,68 кв м
Тамбур — 3,94 кв м
Крыльцо — 3,05 кв м
Кладовая — 1,21 кв м
Кухня — 11,58 кв м
Гостиная — 26,60 кв м

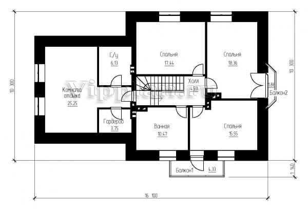
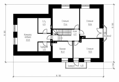
План мансардного этажа


Балкон 1 — 4,33 кв м
Спальня — 15,55 кв м
Ванная — 10,47 кв м
Холл — 4,57 кв м
Гардероб — 3,75 кв м
Комната — 25,25 кв м
С/у — 6,13 кв м
Спальня — 17,44 кв м
Спальня — 18,36 кв м
Балкон 2 — 1,86 кв м
Готовый проект загородного дома Готовый проект загородного дома Готовый проект загородного дома Готовый проект загородного дома

Модификации проектов

Внесение изменений и привязка к участку строительства

В любой из проектов от компании VIPplan - Пенза по вашему желанию могут быть внесены изменения в материалы стен, материалы наружной отделки дома, а также будет произведена адаптация проекта под конкретный регион строительства (с учетом грунтов региона, геологических особенностей вашего участка и местных климатических условий) - БЕСПЛАТНО !!! (кроме проектов со скидкой и проектов наших партнеров).

Любой из проектов, размещенных на сайте penza.vipplan.ru мы можем выполнить из требуемых вам строительных материалов: ячеистый бетон (газобетон, пеноблок), керамоблок, кирпич, шлакоблок, бетонный блок, дерево (брус, клееный брус), каркасная технология (деревянный каркас, металлокаркас (ЛСТК)).

Фасад дома и его наружную отделку так же возможно выполнить с применением различных облицовочных материалов: структурной штукатурки, (с утеплителем и без), сайдингом (пластиковый или металлосайдинг), фиброплитами, кирпича.

 
6 Избранные
проекты

Доставка проектов по России: Москва (Московская область), Санкт-Петербург (Ленинградская область), Краснодар, Ростов-на-Дону, Ставрополь, Сочи, Волгоград, Новосибирск, Белгород, Брянск, Воронеж, Саратов, Хабаровск, Астрахань, Нальчик, Владикавказ, Екатеринбург, Тюмень, Самара, Нижний Новгород, Казань, Пермь, Уфа, Челябинск, Красноярск, Ханты-Мансийск, Иркутск, Курган, Оренбург, Омск, Томск, Барнаул, Новокузнецк, Кемерово, Абакан, Чита, Якутск, Южно-Сахалинск, Петропавловск-Камчатский и страны ближнего зарубежья: Белоруссия, Украина, Казахстан